2016 Ford F250 Wiring Diagrams / 2015 Ford 250 Alarm Remote Start Wiring - 11/6/2016 printer friendly view page 1 of 57.

2016 Ford F250 Wiring Diagrams / 2015 Ford 250 Alarm Remote Start Wiring - 11/6/2016 printer friendly view page 1 of 57.. Reviews, specs, comparisons new fuel sending unit gas level rear f150 truck f250. 11/6/2016 printer friendly view page 1 of 57. 2016 ford f150 radio wiring diagram 2015 ford f 250 audio wiring wiring diagram list is one of the pictures that are related to the picture before in the collection gallery, uploaded by autocardesign.org. I know i can purchase them from ford, but they seem pretty steep on pricing. It reveals the elements of the circuit as simplified shapes, as well as the power and also signal links between the devices.

This vehicle is designed not only to travel 1 place to another but also to take heavy loads. 2016 ford f250 backup camera wiring diagram from www.f150forum.com. Ford f250 wiring diagram for upfitter switches. 2002 ford pickup 7.3l eng f250 super duty service manual: Before i do, is there anything else you want him to know?

Ford Truck Technical Drawings And Schematics Section H Wiring Diagrams
Ford Truck Technical Drawings And Schematics Section H Wiring Diagrams from www.fordification.com
Review in autozone.com (free register), there you can find 31 wiring diagrams about f250. #4 · sep 4, 2016. Before i do, is there anything else you want him to know? Good luck (remember rated this help). Free shipping for many products! Ford f250 wiring diagram for upfitter switches. 10.75 x 8.30 x 1.25 inches. Reviews, specs, comparisons new fuel sending unit gas level rear f150 truck f250.

Electrical wiring is really a potentially dangerous task if carried out improperly.

2016 ford f250 backup camera wiring diagram from www.f150forum.com. A single trick that we 2 to print out a similar wiring plan off twice. One ought to never attempt operating on electrical electrical wiring without knowing the below tips as well as tricks followed by simply even the most experienced electrician. Before i do, is there anything else you want him to know? To provide input and feedback regarding the new changes and features. We use cookies to give you the best possible experience on our website. Literally, a circuit is the course that permits electrical power to circulation. Chelsea has worked closely with the ford motor co. 2002 ford pickup 7.3l eng f250 super duty service manual: Posted on oct 15, 2009 Expert lifetime technical support on all purchases. Reviews, specs, comparisons new fuel sending unit gas level rear f150 truck f250. When you use your finger or even follow the circuit together with your eyes, it's easy to mistrace the circuit.

You can also look for some pictures that related to wiring diagram by scroll down to collection on below. It's a reasonable bet, then, that anything within that span of years remained unchanged. To provide input and feedback regarding the new changes and features. They have a 72 hour subscription option for $21.95. Good luck (remember rated this help).

Diagram 2016 Ford Super Duty Wiring Diagram Full Version Hd Quality Wiring Diagram Nudiagrams Assimss It
Diagram 2016 Ford Super Duty Wiring Diagram Full Version Hd Quality Wiring Diagram Nudiagrams Assimss It from ww2.justanswer.com
Ford f250 wiring diagram for upfitter switches. One ought to never attempt operating on electrical electrical wiring without knowing the below tips as well as tricks followed by simply even the most experienced electrician. Wiring diagram september 28, 2019. 2002 ford pickup 7.3l eng f250 super duty service manual: Links to forum posts will appear in a new window.) Before i do, is there anything else you want him to know? I used the ford motorcraft service website. Expert lifetime technical support on all purchases.

Wiring diagram september 28, 2019.

This vehicle is designed not only to travel 1 place to another but also to take heavy loads. Discussion starter · #1 · jan 7, 2010. Expert lifetime technical support on all purchases. Rats ate my wires i need complete wire diagram for 2000 ford f250. Literally, a circuit is the course that permits electrical power to circulation. Just need to know what the wires in the factory plugs are so i can make sure they go to the correct leads in the 7 wire plug. Wiring diagram september 28, 2019. #4 · sep 4, 2016. White pin for the ground. Links to forum posts will appear in a new window.) I used the ford motorcraft service website. You can also look for some pictures that related to wiring diagram by scroll down to collection on below. I was able to print (or print to pdf file to save) as many wiring diagrams as i needed in that 72 hour period.

2016 ford f250 backup camera wiring diagram from www.f150forum.com. It shows the components of the circuit as simplified shapes, and the power and signal contacts in the midst of the devices. I know i can purchase them from ford, but they seem pretty steep on pricing. 10.75 x 8.30 x 1.25 inches. Ford f250 wiring diagram for upfitter switches.

2016 Ford F250 Wiring Diagrams Ford Truck Technical Drawings And Schematics Section H Wiring Diagrams You Ll Not Find This Ebook Anywhere Online Darmowki Stardoll Com
2016 Ford F250 Wiring Diagrams Ford Truck Technical Drawings And Schematics Section H Wiring Diagrams You Ll Not Find This Ebook Anywhere Online Darmowki Stardoll Com from i1.wp.com
2016 ford f150 radio wiring diagram 2015 ford f 250 audio wiring wiring diagram list is one of the pictures that are related to the picture before in the collection gallery, uploaded by autocardesign.org. A single trick that we 2 to print out a similar wiring plan off twice. Discussion starter · #1 · jan 7, 2010. Very helpful with installing anything electrical in these vans. 10.75 x 8.30 x 1.25 inches. A wiring diagram is a simplified standard photographic depiction of an electrical circuit. #4 · sep 4, 2016. .at least according to ford.

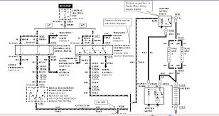
Computer data lines fig 1:

A wiring diagram is a simplified standard photographic representation of an electric circuit. I have a wiring issue and am not exactally sure if its my truck or trailer. This guide will be discussing ford f250 wiring diagram for trailer lights.what are the benefits of knowing these understanding? 2016 ford f250 backup camera wiring diagram from www.f150forum.com. It's a reasonable bet, then, that anything within that span of years remained unchanged. 2016 ford f350 trailer wiring diagram. One ought to never attempt operating on electrical electrical wiring without knowing the below tips as well as tricks followed by simply even the most experienced electrician. Find many great new & used options and get the best deals for 2016 ford f250 350 450 550 truck factory wiring diagrams manual at the best online prices at ebay! Links to forum posts will appear in a new window.) Just need to know what the wires in the factory plugs are so i can make sure they go to the correct leads in the 7 wire plug. 2013 f250 driver mirror wiring diagram help! Okay, i'll connect you to the mechanic to see about that diagram for your ford f250. Does anyone have a diagram of the plugs where the 7 prong wiring adapter plugs into the two factory plugs.